
圖紙目錄:
圖紙目錄1:

圖紙目錄2:

圖紙目錄3:

圖紙目錄4:

圖紙目錄5:

圖紙目錄6:

施工圖說明1:

施工圖說明2:

施工圖說明3:

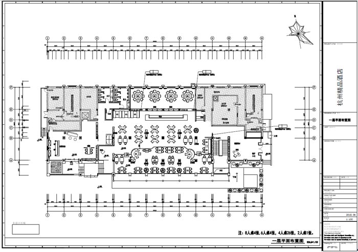
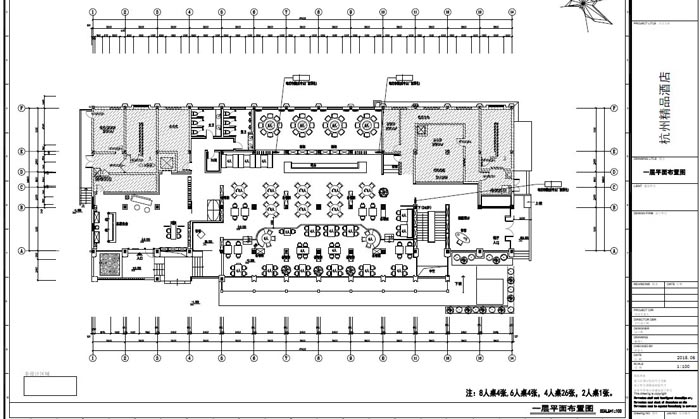
一層平面圖:
一層平面圖:

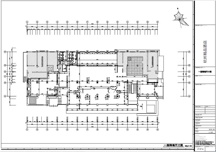
一層隔墻尺寸圖:

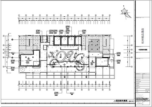
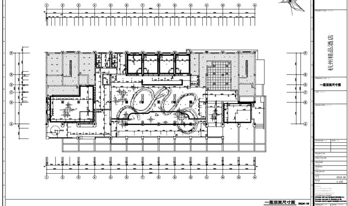
一層頂面布置圖:

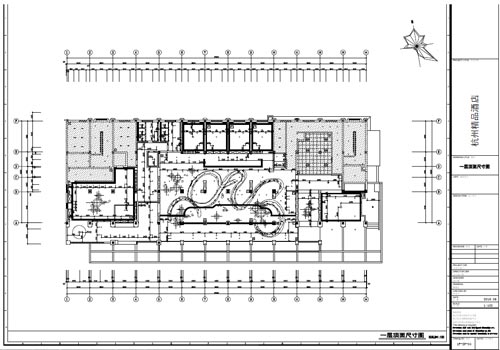
一層頂面尺寸圖:

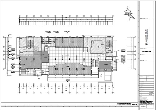
一層地面布置圖:

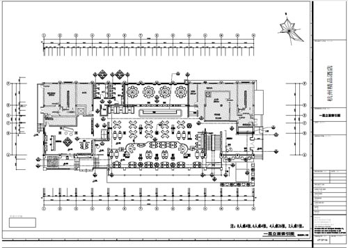
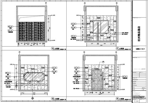
一層立面索引圖:

一層立面圖:
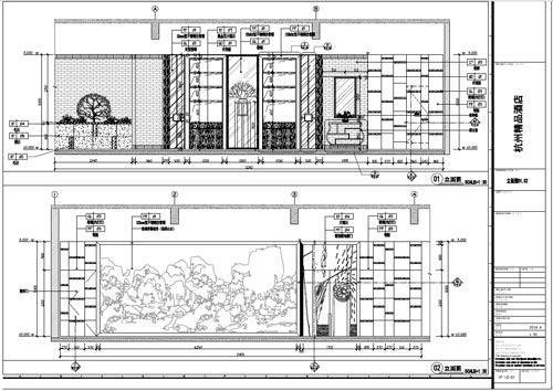
一層立面圖01-02

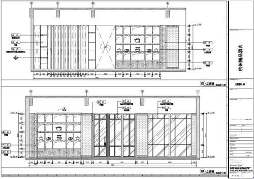
一層立面圖03-04

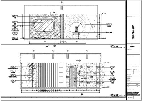
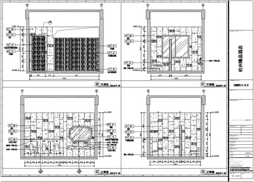
一層立面圖05-06

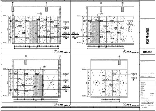
一層立面圖07-10

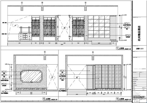
一層立面圖11-13

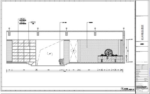
一層立面圖14

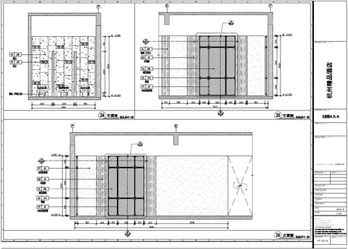
一層立面圖15

一層立面圖16-19

一層立面圖20-23

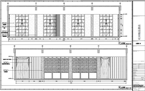
一層立面圖24-26

一層立面圖27-28

一層立面圖29

一層立面圖30-32

一層立面圖33

一層立面圖34-36

一層立面圖37-38

一層立面圖39

一層立面圖40

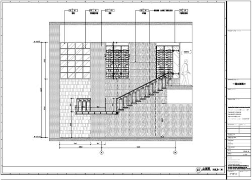
一層立面圖41

一層剖面圖:
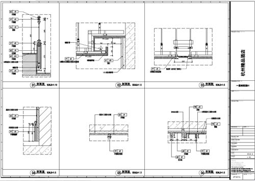
一層剖面圖01-06

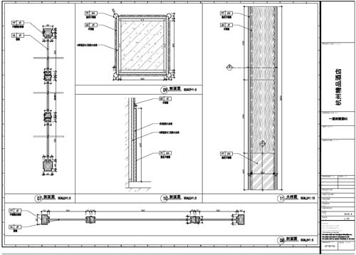
一層剖面圖07-11

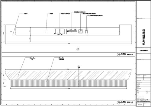
一層剖面圖12-14

一層剖面圖15-16

一層剖面圖17-20

一層剖面圖21-23

一層剖面圖24-27

一層剖面圖28-29

一層剖面圖30-33

一層剖面圖34-38

一層剖面圖39-43

一層剖面圖44-47

一層剖面圖48-49

一層剖面圖50-53

一層剖面圖54-57

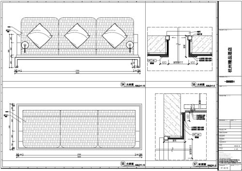
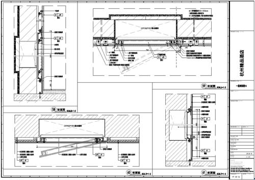
一層剖面圖58-61

一層剖面圖62-64

二、三、四層平面布置圖:
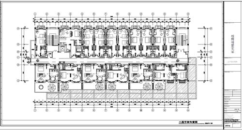
二層平面布置圖

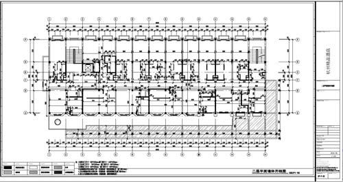
二層平面墻體開線圖

二層頂面布置圖

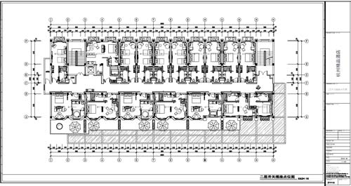
二層開關插座點位圖圖

三層地面鋪裝圖

三層平面布置圖

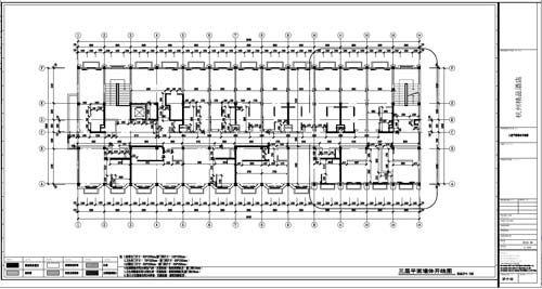
三層平面墻體開線圖

三層頂面布置圖

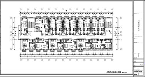
三層開關插座點位圖

三層地面鋪裝圖

四層平面布置圖

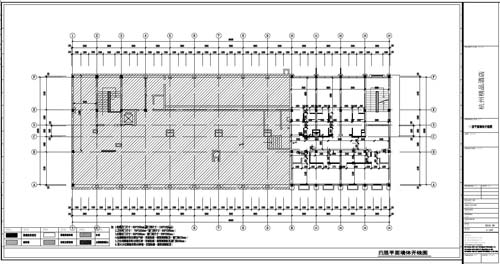
四層平面墻體開線圖

四層頂面布置圖

四層開關插座點位圖

四層地面鋪裝圖

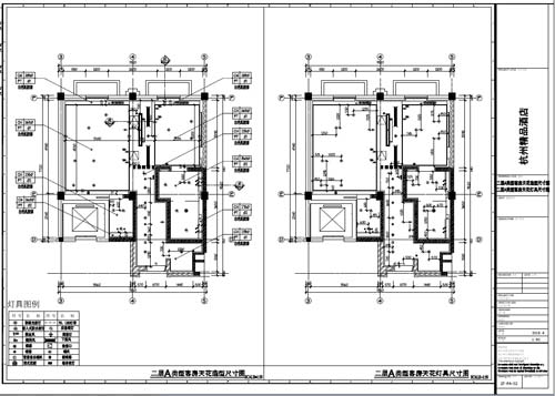
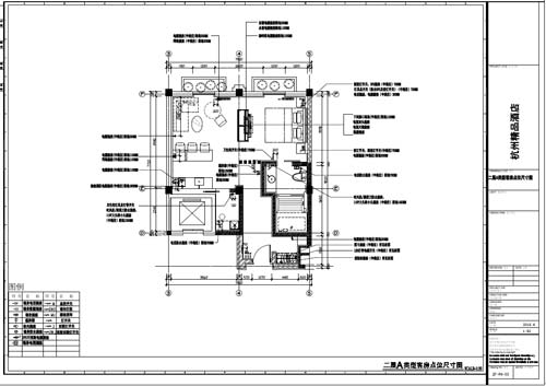
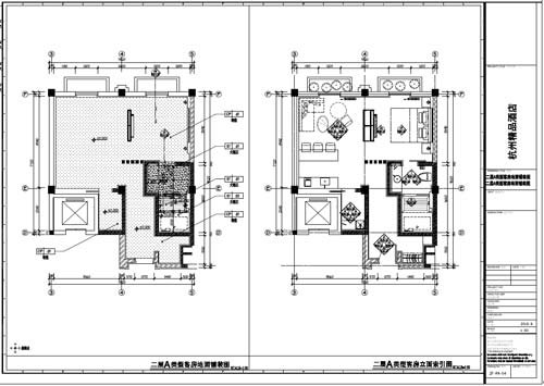
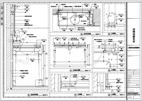
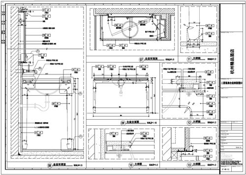
二層類型客房深化圖:
二層類型客房平面布置圖

二層類型客房天花燈具尺寸圖

二層類型客房點位尺寸圖

二層類型客房立面索引圖

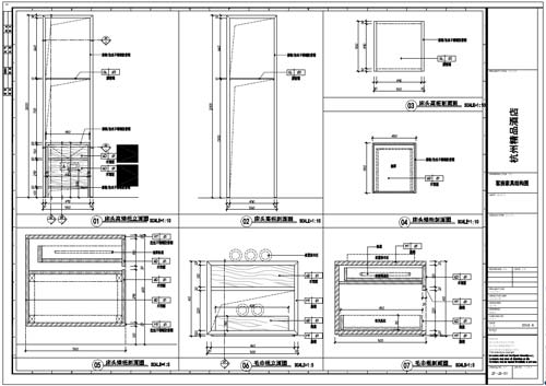
二層客房家具圖:

二層客房臺盆節點刨面圖:
二層客房節點刨面圖01-07

二層客房節點刨面圖08-13

未完,請關注:精品酒店深化設計施工圖(2)