本次為木藝實驗室裝修設計效果圖,實驗室設計面積450平方,設計師在實驗室設計中,將450平方實驗室隔成兩層,單層面積300平方,二層面積150平方,空間融合培訓、實驗、辦公于一體。
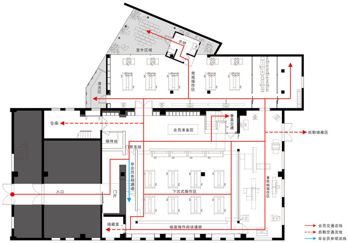
▼木藝實驗室平面圖

▼木藝實驗室入口

▼木藝實驗室樓梯入口

▼木藝實驗室樓梯出口

▼木藝實驗室實驗區

▼木藝實驗室實驗區

▼木藝實驗室培訓區

▼木藝實驗室培訓區

▼木藝實驗室培訓區

▼木藝實驗室培訓區

▼木藝實驗室培訓區

▼木藝實驗室培訓區

▼木藝實驗室二層

▼木藝實驗室俯視圖

▼木藝實驗室休息區

▼木藝實驗室實驗區

本次木藝實驗室裝修設計效果圖講解到此結束,設計師在實驗室設計中,將450平方實驗室隔成兩層,單層面積300平方,二層面積150平方,空間融合培訓、實驗、辦公于一體。