本次為挑高層辦公室裝修設計效果圖,辦公室位于一個挑高層的空間之中,設計師在辦公室設計中,以活力、實用為辦公室設計關鍵詞,目的就是希望營造一個實用的辦公空間。
▼辦公室一層平面圖

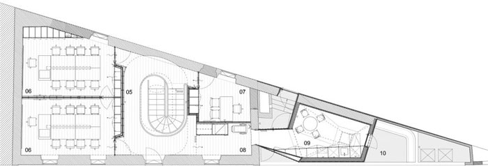
▼辦公室二層平面圖

▼挑高層辦公室進門區(qū)

▼挑高層辦公室樓梯

▼挑高層辦公室交流區(qū)

▼挑高層辦公室辦公區(qū)

▼挑高層辦公室會議室

本次挑高層辦公室裝修設計效果圖講解到此結束,設計師在辦公室設計中,以活力、實用為辦公室設計關鍵詞,目的就是希望營造一個實用的辦公空間。
裝修風格 | 裝修攻略 | 深化設計 | 關于嵐禾 | 免責聲明 | 嵐禾保障 | 工裝網(wǎng) | 中式辦公室裝修 | 廠房辦公室裝修 | 辦公室裝修效果圖 | 金融辦公室裝修 | 教育培訓機構裝修 | 科技辦公室裝修 | 公司辦公室裝修 | 辦公室裝修設計 | 民宿設計 | 聯(lián)系嵐禾
地址:杭州市西湖區(qū) 中國美術學院風景建筑設計研究總院(西斗門路) 20號 5B 郵編:310000 業(yè)務咨詢:0571-88091570 傳真:0571-88091570 E-mail: 1467724601@qq.com
杭州工裝裝修公司:www.hongyuan119.com.cn